The Albion applies for permission to extend

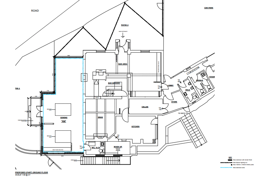
An application has been submitted to demolish the conservatory at The Albion and erect a new extension to form new larger dining area.

The conservatory area has been used as a restaurant area for a number of years having gained planning permission in 2000 but the move would create a more permanent structure for customers.

The footprint would be slightly larger, covering part of the patio area to the right-hand side of the main entrance.

Paul Williams, General Manager at The Albion told VerwoodToday.co.uk: I’m very excited about the proposed plans and it will add a more comfortable and enjoyable dining experience.”

The plan, by Enterprize Inns, has already had one objection from a neighbour to the pub with regards to noise and smokers.

To see the full details, visit the Dorset Planning Website with the reference 3/19/2428/FUL.

Get real time updates directly on you device, subscribe now.

Also happening..

More local news